ERB/ERC 110-200
ERB/ERC 110-200
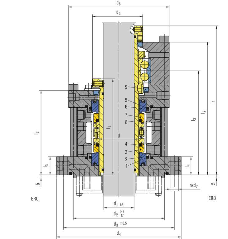
Item Description
1, 4, 5, 8 O-Ring
2, 6 Seat
3, 7 Seal face
9 Shaft seal
ERB/ERC 50-100
ERB/ERC 50-100

ERB

Features

  • Cartridge unit
  • Double seal with integrated bearing
  • Unbalanced
  • Independent of direction of rotation

Advantages

  • Ready-to-fit and factory-tested units
  • Available with or without bearing
  • Suitable for standardizations
  • Balanced seal can be applied at high pressure

Operating range

Pressure: p = vacuum ... 10 bar (145 PSI)
Temperature:
t = -30 °C ... +200 °C (-22 °F … +392 °F)
Rotational speed: = max. 200 min-1
Axial movement: max. 0.3 mm

! It should be noted that the extremal values of each operating parameter cannot be applied at the same time because of their interaction.

Materials

Diameter 50 ... 100 mm:
Seal faces: Carbon graphite resin impregnated(B)
Seat: Silicon carbide (Q1), Tungsten carbide (U1), chromium oxide coated

Diameter 110 ... 200 mm:
Seal faces: Silicon carbide (Q1), Tungsten carbide(U1), chromium oxide coated
Seats: Carbon graphite resin impregnated (B), Silicon carbide (Q1), Tungsten carbide (U1)

Standards and approvals

  • Compliant to TA Luft (German Clean Air Act)

Notes

Options:
Cooling jacket on the vessel side flange. Please inquire.



Product variants

ERA
Double seal integrated shaft and bearing.
ERC
Double seal without bearing.
ERD
Single seal integrated shaft and bearing.
ERE
Single seal integrated bearing.
ERG
Double seal with integrated bearing. For glass-lined vessels.

Similar products

HS-D

  • For top entry drives
  • Double seal
  • Unbalanced
  • Independent of direction of rotation
  • Multiple springs rotating
  • Liquid-lubricated
  • Cartridge unit

HSH(L)U-D

  • For bottom entry drives
  • Double seal
  • Balanced
  • Independent of direction of rotation
  • Multiple springs rotating
  • Liquid-lubricated
  • Cartridge unit

HSH-D

  • For top entry drives
  • Double seal
  • Balanced
  • Independent of direction of rotation
  • Multiple springs rotating
  • Liquid-lubricated
  • Cartridge unit
Contact

Inquire about individual solutions

We develop and produce customer-specific special and individual solutions for every application.

Inquire now Discover reference projects
Back to the overview